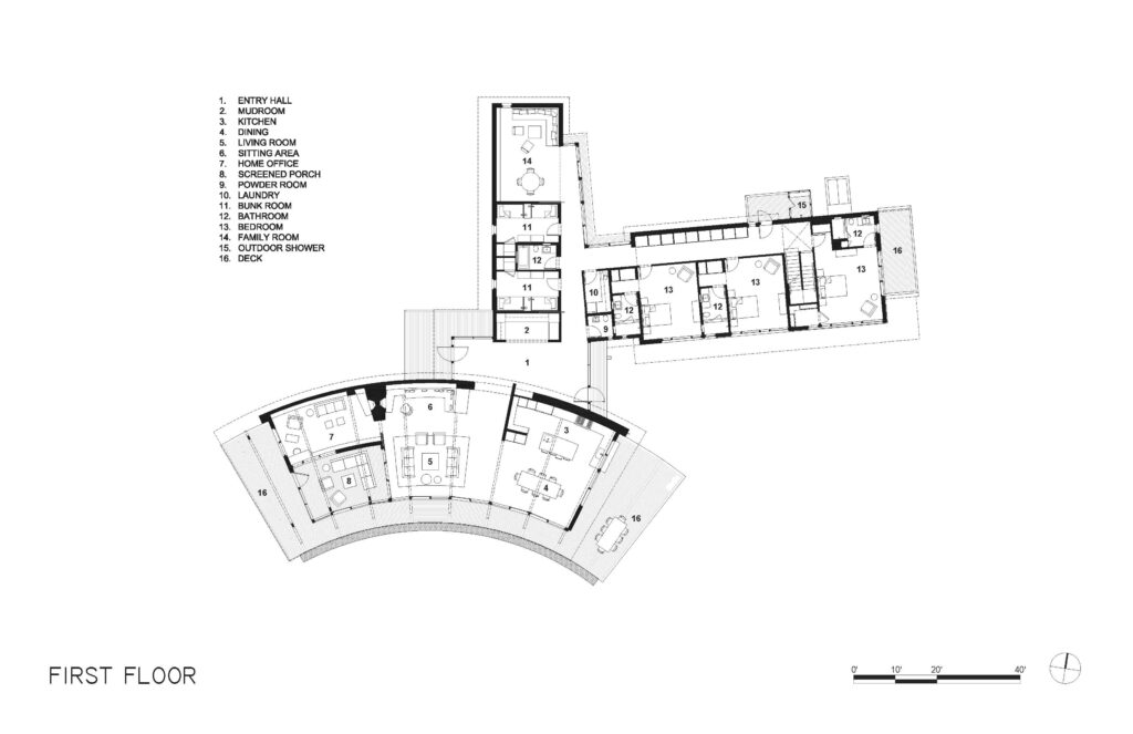
The house’s curve is calibrated to the sun’s path, maximizing shade in the summer months, while offering a variety of framed views to the expansive meadows and the Atlantic Ocean.
With a building envelope that approaches Passive House standards, Young optimized the energy profile of this vacation home.







