A swath of black cedar announces the entrance as a sleek, modern “welcome portal,” with a sheltering roof over the glass front door.
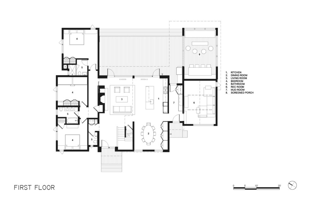
A new sun terrace coupled with a new covered screened porch and a floor-to-ceiling glazed living area allow the clients to experience indoor/outdoor living for much of the year.
Built in the 1980s, the original house had become stylistically outdated and had fallen into functional disrepair. Considered to be at the end of its lifespan, the previous owners had placed it on the market as a tear-down.
















